Espace propriétaire
fr
Se connecter
Se connecter

Votre recherche

Sous-offre
Coup de coeur
Cagnes-sur-Mer (06800)

5 pièces - 102,75 m²

EXCLUSIVITE - RARE - 103m2 habitable - 158m2 de terrasse - vue mer

570 000 €
Ref : 1377
Découvrir le bien

SOUS OFFRE - TSL IMMO Découvrez un bien d'exception situé au 6ᵉ et dernier étage, dans le meilleur emplacement de Cagnes-sur-Mer. Cet appartement rare, accessible par ascenseur et bénéficiant d'une entrée privative sur la gauche, offre un cadre de vie unique mêlant confort, lumière et panorama privilégié.

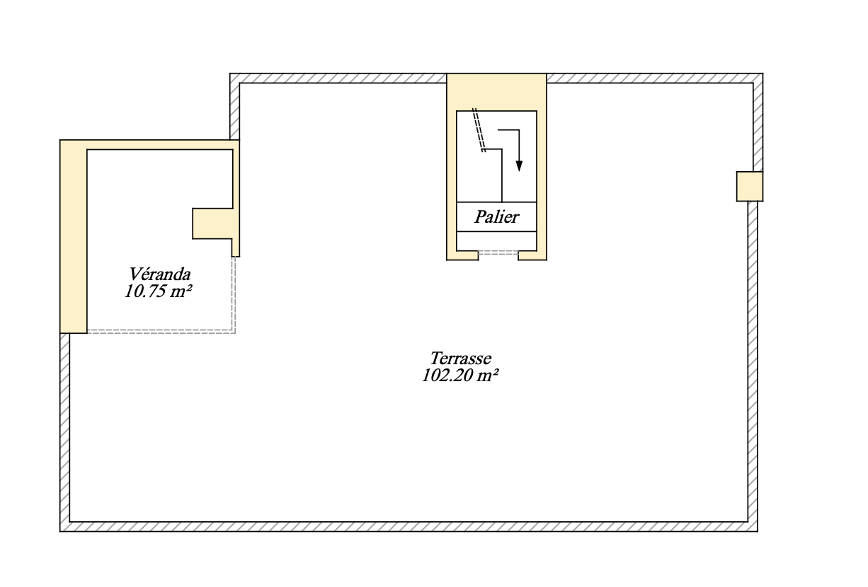
L'appartement de 103m2 se compose d'un hall d'entrée, d'un spacieux salon - salle à manger ouvrant sur une terrasse de 15m2 avec vue mer, d'une cuisine donnant également sur une terrasse de 41m2 avec une vue imprenable sur le château, de trois chambres, de trois salles de bains, d'un WC et d'un cabinet de toilettes.

Un escalier intérieur mène directement à une partie de la toiture-terrasse de 102m2, dont la jouissance exclusive et perpétuelle est incluse dans le lot : un atout exceptionnel pour profiter du soleil, des soirées estivales et d'une atmosphère méditerranéenne incomparable.

Depuis les pièces principales comme depuis les terrasses, vous profiterez d'une vue mer dégagée, offrant chaque jour un spectacle entre bleu azur, lumière du Sud et horizon infini.

Idéalement situé, l'appartement se trouve au cœur de Cagnes-sur-Mer, une ville où il fait bon vivre toute l'année :

• un bord de mer réaménagé, idéal pour les balades et les activités nautiques

• un centre-ville animé avec commerces, restaurants et marchés provençaux

• le charme authentique du Haut-de-Cagnes et de ses ruelles historiques

• une accessibilité parfaite : Nice, l'aéroport et la gare sont à seulement quelques minutes.

Un dernier étage, une terrasse exclusive, une vue mer et l'une des plus belles adresses de Cagnes-sur-Mer : un bien d'exception devenu rare sur le marché.

TRAD_ZEPHYR_Caracteristique TRAD_ZEPHYR_Valeurs
Code postal 06800
Surface loi Carrez (m²) 102,75 m²
Nombre de chambre(s) 3
Nombre de pièces 5
Etage 6
Nombre de niveaux 2
Ascenseur OUI
Vue Vue mer
TRAD_ZEPHYR_Caracteristique TRAD_ZEPHYR_Valeurs
Nb de salle de bains 1
Nb de salle d'eau 2
Cuisine Séparée
Type de cuisine Equipée
Mode de chauffage Fioul
Type de chauffage Chaudière
Format de chauffage Collectif
Balcon OUI
Terrasse OUI
Murs mitoyens 2
Nombre de garage 1
Cave OUI
Surface cave (m²) 3.6
Exposition Sud
Année de construction 1974
TRAD_ZEPHYR_Caracteristique TRAD_ZEPHYR_Valeurs
Copropriété OUI
Lot n° 338, 14
nombre de lots 339
TRAD_ZEPHYR_Caracteristique TRAD_ZEPHYR_Valeurs
Prix de vente honoraires TTC inclus 570 000 €
Charges 591 €
DPE GES
Contacter pour ce bien
L'agence
Téléphone 04 93 58 19 24
Adresse
8 Av. de la Résistance 06140 Vence

* Champ obligatoire

Les informations recueillies sur ce formulaire sont enregistrées dans un fichier informatisé par La Boite Immo agissant comme Sous-traitant du traitement pour la gestion de la clientèle/prospects de l'Agence / du Réseau qui reste Responsable du Traitement de vos Données personnelles. La base légale du traitement repose sur l'intérêt légitime de l'Agence / du Réseau. Elles sont conservées jusqu'à demande de suppression et sont destinées à l'Agence / au Réseau. Conformément à la loi « informatique et libertés », vous disposez des droits d’accès, de rectification, d’effacement, d’opposition, de limitation et de portabilité de vos données. Vous pouvez retirer votre consentement à tout moment en contactant directement l’Agence / Le Réseau. Consultez le site https://cnil.fr/fr pour plus d’informations sur vos droits. Si vous estimez, après avoir contacté l'Agence / le Réseau, que vos droits « Informatique et Libertés » ne sont pas respectés, vous pouvez adresser une réclamation à la CNIL. Nous vous informons de l’existence de la liste d'opposition au démarchage téléphonique « Bloctel », sur laquelle vous pouvez vous inscrire ici : https://www.bloctel.gouv.fr Dans le cadre de la protection des Données personnelles, nous vous invitons à ne pas inscrire de Données sensibles dans le champ de saisie libre.
Ce site est protégé par reCAPTCHA, les Politiques de Confidentialité et les Conditions d'Utilisation de Google s'appliquent.

Découvrir nos outils