Espace propriétaire
fr
Se connecter
Se connecter

Votre recherche

Nouveauté
Tourrettes-sur-Loup (06140)

4 pièces - 115,08 m²

A VENDRE Maison familiale à Tourrettes-sur-Loup

645 000 €
Ref : 1390
Découvrir le bien

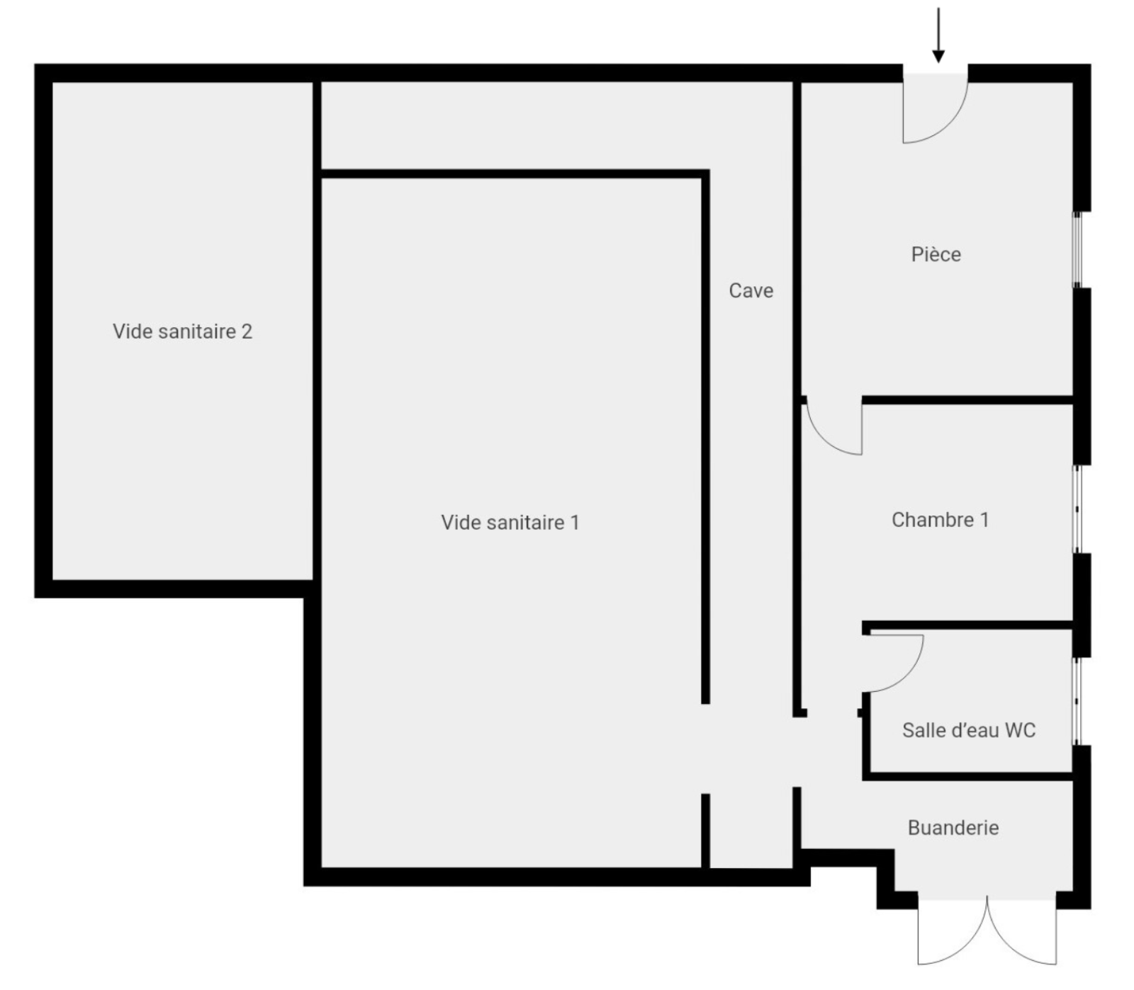
Au cœur d’un environnement privilégié, à proximités des commerces et des écoles, maison familiale avec 3 chambres et un grand sous-sol, elle se compose de la façon suivante :

L’entrée s’ouvre sur une pièce de vie lumineuse, prolongée par une très grande terrasse. La maison dispose d’une cuisine indépendante avec cellier, de trois chambres, d’une salle de douche et de WC séparés. Au rez-de-jardin : un grand sous-sol complète le bien, offrant de nombreuses possibilités : espace de stockage, bureau, ou logement annexe selon vos besoins. Une salle de douche est également présente à ce niveau.

La maison est implantée sur un terrain d’environ 2 000 m², avec de larges restanques.

La maison a fait l’objet de rénovations récentes :

  • Double vitrage
  • Raccordement au tout-à-l’égout
  • Murs lissés, peintures récentes
  • Cuisine et salle de douche rénovées
  • Isolation des combles (laine de verre)
  • Isolation extérieure des murs nord et ouest
  • Système de drainage des eaux pluviales

L’avis de l’agence : un bien idéal pour une petite famille, alliant calme, confort et potentiel, dans l’un des villages les plus prisés de l’arrière-pays. Belle opportunité à découvrir sans tarder !

TRAD_ZEPHYR_Caracteristique TRAD_ZEPHYR_Valeurs
Code postal 06140
surface terrain 2 080 m²
Nombre de chambre(s) 3
Nombre de pièces 4
TRAD_ZEPHYR_Caracteristique TRAD_ZEPHYR_Valeurs
Nb de salle d'eau 1
Cuisine Séparée
Type de cuisine Equipée
Mode de chauffage Fioul
Type de chauffage Radiateur
Format de chauffage Individuel
Terrasse OUI
Exposition Sud
Année de construction 1966
Quartier PROCHE VILLAGE
TRAD_ZEPHYR_Caracteristique TRAD_ZEPHYR_Valeurs
Copropriété NON
TRAD_ZEPHYR_Caracteristique TRAD_ZEPHYR_Valeurs
Prix de vente honoraires TTC inclus 645 000 €
Taxe foncière annuelle 1 145 €
DPE GES
Contacter pour ce bien
L'agence
Téléphone 04 93 58 19 24
Adresse
8 Av. de la Résistance 06140 Vence

* Champ obligatoire

Les informations recueillies sur ce formulaire sont enregistrées dans un fichier informatisé par La Boite Immo agissant comme Sous-traitant du traitement pour la gestion de la clientèle/prospects de l'Agence / du Réseau qui reste Responsable du Traitement de vos Données personnelles. La base légale du traitement repose sur l'intérêt légitime de l'Agence / du Réseau. Elles sont conservées jusqu'à demande de suppression et sont destinées à l'Agence / au Réseau. Conformément à la loi « informatique et libertés », vous disposez des droits d’accès, de rectification, d’effacement, d’opposition, de limitation et de portabilité de vos données. Vous pouvez retirer votre consentement à tout moment en contactant directement l’Agence / Le Réseau. Consultez le site https://cnil.fr/fr pour plus d’informations sur vos droits. Si vous estimez, après avoir contacté l'Agence / le Réseau, que vos droits « Informatique et Libertés » ne sont pas respectés, vous pouvez adresser une réclamation à la CNIL. Nous vous informons de l’existence de la liste d'opposition au démarchage téléphonique « Bloctel », sur laquelle vous pouvez vous inscrire ici : https://www.bloctel.gouv.fr Dans le cadre de la protection des Données personnelles, nous vous invitons à ne pas inscrire de Données sensibles dans le champ de saisie libre.
Ce site est protégé par reCAPTCHA, les Politiques de Confidentialité et les Conditions d'Utilisation de Google s'appliquent.

Découvrir nos outils