Espace propriétaire
fr
Se connecter
Se connecter

Votre recherche

Sous-compromis
Exclusivité
Vence (06140)

3 pièces - 77,55 m²

VENCE - Appartement 3P Idéal investisseur - Lumineux en Centre-Ville, parking, deux caves.

230 000 €
Ref : 1873
Découvrir le bien

SOUS COMPROMIS // VENCE centre ville, nous vous proposons ce spacieux appartement de 77m², à rénover.

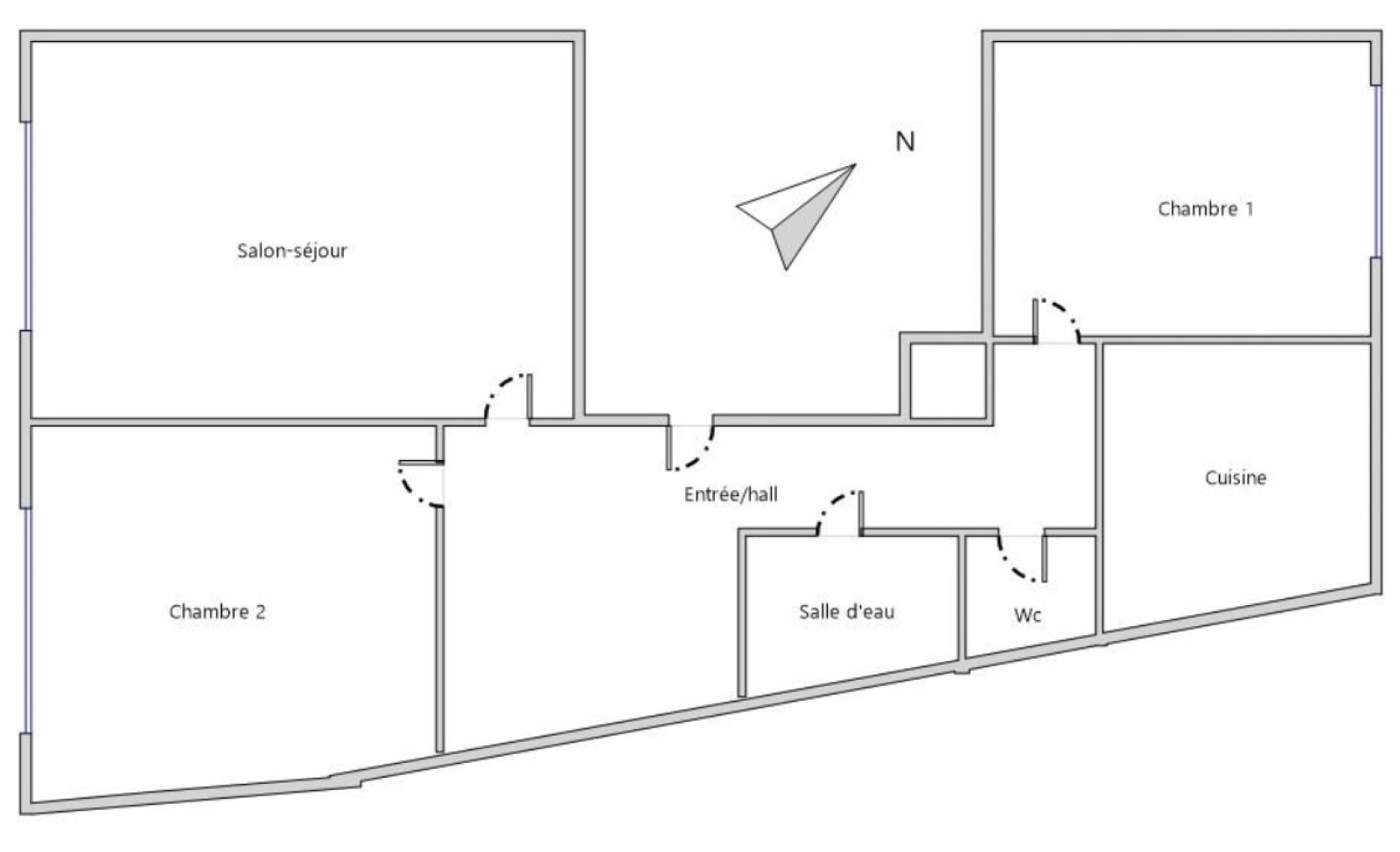
Cet appartement est la réunion d'un studio et d'un 2P; il sera trés facile de les transformer à nouveau en deux appartements. Aujourd'hui, Il se compose d'une entrée avec placard, d'un séjour lumineux, d'une cuisine indépendante, de deux chambres, d'un dégagement avec placard, ainsi que d'une salle d'eau et d'un WC indépendant. Deux caves et un parking.

Idéal pour une famille, profession libérale et investisseurs.

Quote-part annuelle de charges: 1660€

Les informations sur les risques auxquels ce bien est exposé sont disponibles sur le site www.georisques.gouv.fr


Les informations sur les risques auxquels ce bien est exposé sont disponibles sur le site Géorisques
TRAD_ZEPHYR_Caracteristique TRAD_ZEPHYR_Valeurs
Code postal 06140
Surface loi Carrez (m²) 77,55 m²
Nombre de chambre(s) 2
Nombre de pièces 3
Etage 1
Ascenseur OUI
Vue Citadine
TRAD_ZEPHYR_Caracteristique TRAD_ZEPHYR_Valeurs
Nb de salle d'eau 1
Cuisine Séparée
Mode de chauffage Electrique
Type de chauffage Convecteur
Format de chauffage Individuel
Balcon OUI
Cave OUI
Exposition Nord-Sud
Année de construction 1975
Quartier centre ville
TRAD_ZEPHYR_Caracteristique TRAD_ZEPHYR_Valeurs
Copropriété OUI
Lot n° 10-17-33-94-95
Quote Part annuelle des charges 1 660 €
plan de sauvegarde NON
statut du syndic pas de procédure en cours
TRAD_ZEPHYR_Caracteristique TRAD_ZEPHYR_Valeurs
Prix de vente 230 000 €
Les honoraires d'agence seront intégralement à la charge du vendeur  
Charges 140 €
Taxe foncière annuelle 1 187 €
Rez de chaussée
salon/sejour 26.57 m²

chambre 14.15 m²

chambre 12.31 m²

cuisine 7.85 m²

salle de bain 2.47 m²

WC 1.77 m²

entrée 12.43 m²

DPE GES
Contacter pour ce bien
L'agence
Téléphone 04 93 58 19 24
Adresse
8 Av. de la Résistance 06140 Vence

* Champ obligatoire

Les informations recueillies sur ce formulaire sont enregistrées dans un fichier informatisé par La Boite Immo agissant comme Sous-traitant du traitement pour la gestion de la clientèle/prospects de l'Agence / du Réseau qui reste Responsable du Traitement de vos Données personnelles. La base légale du traitement repose sur l'intérêt légitime de l'Agence / du Réseau. Elles sont conservées jusqu'à demande de suppression et sont destinées à l'Agence / au Réseau. Conformément à la loi « informatique et libertés », vous disposez des droits d’accès, de rectification, d’effacement, d’opposition, de limitation et de portabilité de vos données. Vous pouvez retirer votre consentement à tout moment en contactant directement l’Agence / Le Réseau. Consultez le site https://cnil.fr/fr pour plus d’informations sur vos droits. Si vous estimez, après avoir contacté l'Agence / le Réseau, que vos droits « Informatique et Libertés » ne sont pas respectés, vous pouvez adresser une réclamation à la CNIL. Nous vous informons de l’existence de la liste d'opposition au démarchage téléphonique « Bloctel », sur laquelle vous pouvez vous inscrire ici : https://www.bloctel.gouv.fr Dans le cadre de la protection des Données personnelles, nous vous invitons à ne pas inscrire de Données sensibles dans le champ de saisie libre.
Ce site est protégé par reCAPTCHA, les Politiques de Confidentialité et les Conditions d'Utilisation de Google s'appliquent.

Découvrir nos outils