Espace propriétaire
fr
Se connecter
Se connecter

Votre recherche

Coup de coeur
Vence (06140)

4 pièces - 93,06 m²

Charmante Villa à Vence idéalement située proche du centre-ville et des écoles - Garage.

609 000 €
Ref : 1880
Découvrir le bien

Cette jolie villa de 93m2 située à Vence est à découvrir au plus tôt. Idéalement placée à proximité des commerces, Elle offre un cadre parfait pour une famille ou pour ceux qui recherchent confort et praticité.

Le séjour avec sa salle à manger est agréable; son ouverture sur la terrasse permet de profiter de la vue dégagée. Un poële à bois permettra de profiter de la chaleur cocooning de l'hiver. La cuisine est indépendante et semi-équipée. Trois chambres lumineuses. Une salle de bains.

Un garage pratique vous permettra de stationner en toute sécurité, tout en conservant un espace supplémentaire pour le rangement ou un atelier.

Le terrain de 600m² offre un espace extérieur idéal pour profiter et se détendre en toute tranquillité.

Cette villa allie confort, emplacement privilégié et potentiel pour créer votre chez-vous idéal à Vence !

Les informations sur les risques auxquels ce bien est exposé sont disponibles sur le site Géorisques : www.georisques.gouv.fr

TRAD_ZEPHYR_Caracteristique TRAD_ZEPHYR_Valeurs
Code postal 06140
surface terrain 600 m²
Surface loi Carrez (m²) 93,06 m²
Nombre de chambre(s) 3
Nombre de pièces 4
Nombre de niveaux 1
TRAD_ZEPHYR_Caracteristique TRAD_ZEPHYR_Valeurs
Nb de salle de bains 1
Cuisine Séparée
Type de cuisine SEMI-EQUIPEE
Mode de chauffage Electrique, Bois
Type de chauffage Radiateur, Poêle
Format de chauffage Individuel, Individuel
Terrasse OUI
Nombre de garage 1
Nombre de parking 1
Exposition Sud
Année de construction 1961
TRAD_ZEPHYR_Caracteristique TRAD_ZEPHYR_Valeurs
Copropriété OUI
Lot n° 50
nombre de lots 55
Quote Part annuelle des charges 680 €
plan de sauvegarde NON
TRAD_ZEPHYR_Caracteristique TRAD_ZEPHYR_Valeurs
Prix de vente 609 000 €
Les honoraires d'agence seront intégralement à la charge du vendeur  
Charges 56 €
Taxe foncière annuelle 1 334 €
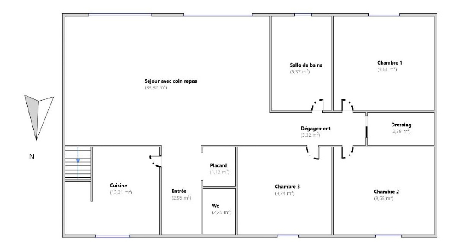
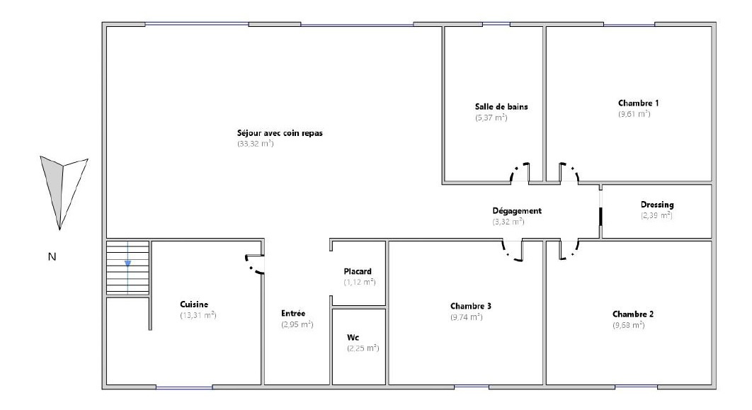
Rez de chaussée
entrée 2.95 m²

salon/sejour 33.32 m²

cuisine 13.31 m²

chambre 9.61 m²

chambre 9.68 m²

chambre 9.74 m²

salle de bain 5.37 m²

DPE GES
Contacter pour ce bien
L'agence
Téléphone 04 93 58 19 24
Adresse
8 Av. de la Résistance 06140 Vence

* Champ obligatoire

Les informations recueillies sur ce formulaire sont enregistrées dans un fichier informatisé par La Boite Immo agissant comme Sous-traitant du traitement pour la gestion de la clientèle/prospects de l'Agence / du Réseau qui reste Responsable du Traitement de vos Données personnelles. La base légale du traitement repose sur l'intérêt légitime de l'Agence / du Réseau. Elles sont conservées jusqu'à demande de suppression et sont destinées à l'Agence / au Réseau. Conformément à la loi « informatique et libertés », vous disposez des droits d’accès, de rectification, d’effacement, d’opposition, de limitation et de portabilité de vos données. Vous pouvez retirer votre consentement à tout moment en contactant directement l’Agence / Le Réseau. Consultez le site https://cnil.fr/fr pour plus d’informations sur vos droits. Si vous estimez, après avoir contacté l'Agence / le Réseau, que vos droits « Informatique et Libertés » ne sont pas respectés, vous pouvez adresser une réclamation à la CNIL. Nous vous informons de l’existence de la liste d'opposition au démarchage téléphonique « Bloctel », sur laquelle vous pouvez vous inscrire ici : https://www.bloctel.gouv.fr Dans le cadre de la protection des Données personnelles, nous vous invitons à ne pas inscrire de Données sensibles dans le champ de saisie libre.
Ce site est protégé par reCAPTCHA, les Politiques de Confidentialité et les Conditions d'Utilisation de Google s'appliquent.

Découvrir nos outils