Espace propriétaire
fr
Se connecter
Se connecter

Votre recherche

Vence (06140)

3 pièces - 68,35 m²

VENCE - Appartement 3P avec terrasse et caves, au coeur du Centre Ville

190 000 €
Ref : 1882
Découvrir le bien

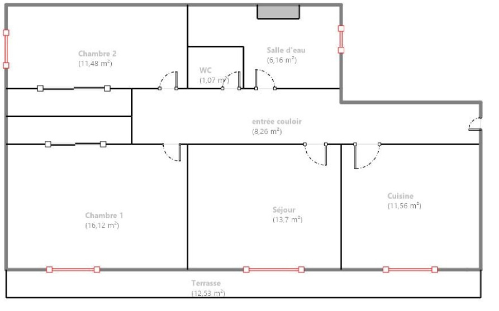
VENCE - BEAUCOUP DE POTENTIEL pour cet appartement 3P de 68m2, située dans une rue piétonne, au calme, à deux pas de toutes les commodités.

Il se compose d'une entrée, d"un séjour lumineux, d'une cuisine indépendante, de deux chambres avec placard, une salle d'eau et un WC indépendant.

Terrasse de 12m2, exposée SUD-EST.

Cave en sous-sol.

Appartement situé dans une copropriété de 10 lots totaux - Quote-part annuelle de charges : 469,32€

TRAD_ZEPHYR_Caracteristique TRAD_ZEPHYR_Valeurs
Code postal 06140
Surface habitable (m²) 68,35 m²
Surface loi Carrez (m²) 68,35 m²
Nombre de chambre(s) 2
Nombre de pièces 3
Vue Citadine
TRAD_ZEPHYR_Caracteristique TRAD_ZEPHYR_Valeurs
Nb de salle d'eau 1
Cuisine Séparée
Mode de chauffage Fioul
Type de chauffage Chaudière
Format de chauffage Individuel
Terrasse OUI
Cave OUI
Exposition Sud-Est
Année de construction 1969
TRAD_ZEPHYR_Caracteristique TRAD_ZEPHYR_Valeurs
Copropriété OUI
Lot n° 01-02-07
nombre de lots 10
Quote Part annuelle des charges 470 €
TRAD_ZEPHYR_Caracteristique TRAD_ZEPHYR_Valeurs
Prix de vente 190 000 €
Les honoraires d'agence seront intégralement à la charge du vendeur  
Charges 59 €
Taxe foncière annuelle 1 049 €
Rez de chaussée
salon/sejour 13.70 m²

cuisine 11.56 m²

chambre 16.12 m²

chambre 11.48 m²

salle d'eau 6.16 m²

terrasse 12.53 m²

DPE GES
Contacter pour ce bien
L'agence
Téléphone 04 93 58 19 24
Adresse
8 Av. de la Résistance 06140 Vence

* Champ obligatoire

Les informations recueillies sur ce formulaire sont enregistrées dans un fichier informatisé par La Boite Immo agissant comme Sous-traitant du traitement pour la gestion de la clientèle/prospects de l'Agence / du Réseau qui reste Responsable du Traitement de vos Données personnelles.
La base légale du traitement repose sur l’intérêt légitime de l'Agence / du Réseau.
Elles sont conservées jusqu'à demande de suppression et sont destinées à l'Agence / au Réseau.
Conformément à la loi « informatique et libertés », vous pouvez exercer votre droit d'accès aux données vous concernant et les faire rectifier en contactant l'Agence / le Réseau.
Si vous estimez, après avoir contacté l'Agence / le Réseau, que vos droits « Informatique et Libertés » ne sont pas respectés, vous pouvez adresser une réclamation à la CNIL.
Nous vous informons de l’existence de la liste d'opposition au démarchage téléphonique « Bloctel », sur laquelle vous pouvez vous inscrire ici : https://www.bloctel.gouv.fr 
Dans le cadre de la protection des Données personnelles, nous vous invitons à ne pas inscrire de Données sensibles dans le champ de saisie libre
Ce site est protégé par reCAPTCHA, les Politiques de Confidentialité et les Conditions d'Utilisation de Google s'appliquent.

Découvrir nos outils