Espace propriétaire
fr
Se connecter
Se connecter

Votre recherche

Sous-offre
Exclusivité
Vence (06140)

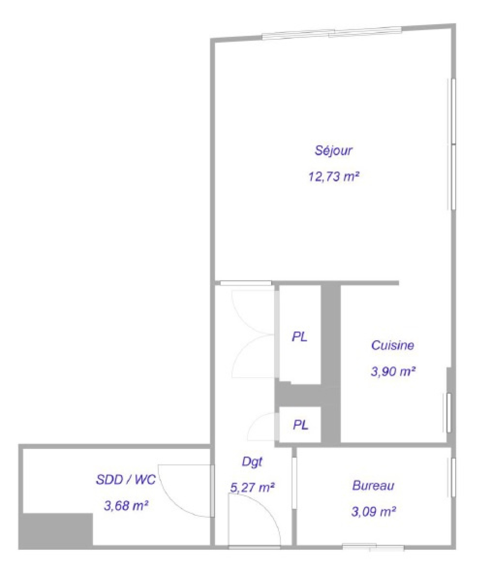
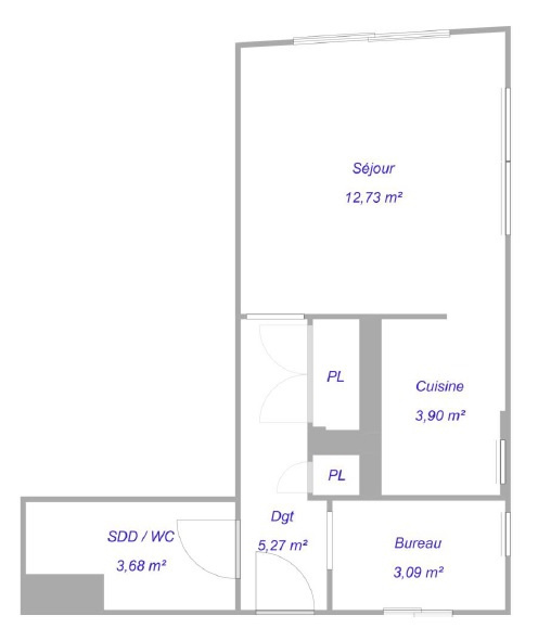
1 pièces - 28,67 m²

VENCE centre ville. Appartement à rénover. Parking sous-sol. Idéal Investisseur.

106 000 €
Ref : 1846
Découvrir le bien

SOUS OFFRE // Opportunité unique en plein cœur de ville ! Découvrez cette ancienne loge de gardien à rénover entièrement, offrant un potentiel exceptionnel pour créer votre espace de vie idéal ou un investissement locatif attractif.

Située au sein d'une résidence de centre-ville, cette loge bénéficie d'un emplacement privilégié, à proximité immédiate de toutes les commodités, des commerces et des transports en commun.

Ce bien rare comprend également un parking en sous-sol, un atout majeur en centre-ville.

Imaginez les possibilités offertes par ce volume à transformer selon vos envies : studio cosy, petit appartement fonctionnel ou bureau indépendant.


Les informations sur les risques auxquels ce bien est exposé sont disponibles sur le site Géorisques
TRAD_ZEPHYR_Caracteristique TRAD_ZEPHYR_Valeurs
Code postal 06140
Surface habitable (m²) 28,67 m²
Surface loi Carrez (m²) 28,67 m²
Nombre de pièces 1
Ascenseur NON
Vue Citadine
TRAD_ZEPHYR_Caracteristique TRAD_ZEPHYR_Valeurs
Nb de salle d'eau 1
Cuisine Séparée
Mode de chauffage Gaz
Type de chauffage Chaudière
Format de chauffage Collectif
Balcon NON
Terrasse NON
Murs mitoyens 1
Cave NON
Exposition Ouest
Année de construction 1965
TRAD_ZEPHYR_Caracteristique TRAD_ZEPHYR_Valeurs
Copropriété OUI
plan de sauvegarde NON
TRAD_ZEPHYR_Caracteristique TRAD_ZEPHYR_Valeurs
Prix de vente 106 000 €
Les honoraires d'agence seront intégralement à la charge du vendeur  
DPE GES
Contacter pour ce bien
L'agence
Téléphone 04 93 58 19 24
Adresse
8 Av. de la Résistance 06140 Vence

* Champ obligatoire

Les informations recueillies sur ce formulaire sont enregistrées dans un fichier informatisé par La Boite Immo agissant comme Sous-traitant du traitement pour la gestion de la clientèle/prospects de l'Agence / du Réseau qui reste Responsable du Traitement de vos Données personnelles.
La base légale du traitement repose sur l’intérêt légitime de l'Agence / du Réseau.
Elles sont conservées jusqu'à demande de suppression et sont destinées à l'Agence / au Réseau.
Conformément à la loi « informatique et libertés », vous pouvez exercer votre droit d'accès aux données vous concernant et les faire rectifier en contactant l'Agence / le Réseau.
Si vous estimez, après avoir contacté l'Agence / le Réseau, que vos droits « Informatique et Libertés » ne sont pas respectés, vous pouvez adresser une réclamation à la CNIL.
Nous vous informons de l’existence de la liste d'opposition au démarchage téléphonique « Bloctel », sur laquelle vous pouvez vous inscrire ici : https://www.bloctel.gouv.fr 
Dans le cadre de la protection des Données personnelles, nous vous invitons à ne pas inscrire de Données sensibles dans le champ de saisie libre
Ce site est protégé par reCAPTCHA, les Politiques de Confidentialité et les Conditions d'Utilisation de Google s'appliquent.

Découvrir nos outils