3 PIÈCES A SAINT-LAURENT-DU-VAR – PLATEAUX FLEURIS – VUE MER & CALME ABSOLU



< Retour

Outils pratiques

Partager l'annonce

Nouveauté

Appartement - Saint-Laurent-Du-Var (06700) - 69 m² - Ref : 1367

425 000
gallery loader

Description de l'offre

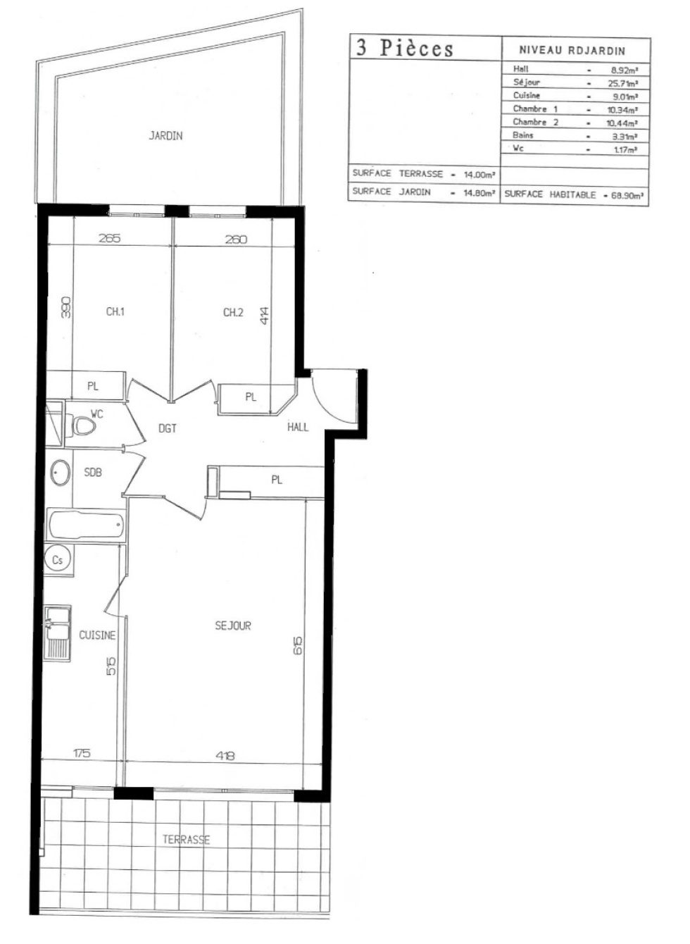
Dans une résidence récente et sécurisée, découvrez ce magnifique 3 pièces de 69 m² offrant vue mer, luminosité et calme ! Le séjour de 26 m², baigné de lumière, s’ouvre sur une terrasse exposée sud-est avec une vue dégagée sur la verdure et la Méditerranée, cuisine indépendante, fonctionnelle et équipée, côté nuit, deux chambres spacieuses avec rangements intégrés, une belle salle de bains et un WC séparé. Atout supplémentaire : un jardin privatif orienté à l'ouest. En option, un double garage vient compléter l’ensemble (25 000 €). T3 idéalement situé dans un secteur recherché de Saint-Laurent-du-Var, à proximité des commerces, écoles et axes de communication.   

Descriptif du bien

Prix du bien 425 000 €


Ville SAINT-LAURENT-DU-VAR


Type de biens Appartement


Code postal 06700


Surface habitable (m²) 69 m²


Surface loi Carrez (m²) 69 m²


Nombre de chambre(s) 2


Nombre de pièces 3


Vue panoramique


Nb de salle de bains 1


Cuisine SEPAREE


Type de cuisine EQUIPEE


Nombre de garage 2


Exposition SUD-EST


Année de construction 2010


Copropriété OUI


Lot n° 5


statut du syndic procédure en cours


Prix de vente honoraires TTC inclus 425 000 €


Taxe foncière annuelle 1 211 €


Diagnostics de performance énergétique

DPE
DPE
DPE en cours

Cette annonce vous intéresse ?

* Champs obligatoires

* : Les informations recueillies sur ce formulaire sont enregistrées dans un fichier informatisé par La Boite Immo agissant comme Sous-traitant du traitement pour la gestion de la clientèle/prospects de l'Agence / du Réseau qui reste Responsable du Traitement de vos Données personnelles.
La base légale du traitement repose sur l’intérêt légitime de l'Agence / du Réseau.
Elles sont conservées jusqu'à demande de suppression et sont destinées à l'Agence / au Réseau.
Conformément à la loi « informatique et libertés », vous pouvez exercer votre droit d'accès aux données vous concernant et les faire rectifier en contactant l'Agence / le Réseau.
Si vous estimez, après avoir contacté l'Agence / le Réseau, que vos droits « Informatique et Libertés » ne sont pas respectés, vous pouvez adresser une réclamation à la CNIL.
Nous vous informons de l’existence de la liste d'opposition au démarchage téléphonique « Bloctel », sur laquelle vous pouvez vous inscrire ici : https://www.bloctel.gouv.fr 
Dans le cadre de la protection des Données personnelles, nous vous invitons à ne pas inscrire de Données sensibles dans le champ de saisie libre
Ce site est protégé par reCAPTCHA, les Politiques de Confidentialité et les Conditions d'Utilisation de Google s'appliquent.

La ville de Saint-Laurent-du-Var (06700)

autres annonces immobilières correspondant à votre recherche

Les biens similaires pour : Vente Appartement Saint-Laurent-du-Var (06700)