RARE OPPORTUNITE à TOURRETTES SUR LOUP ! LOTISSEMENT DE 6 LOTS VIABILISES.



< Retour

Outils pratiques

Partager l'annonce

Exclusivité Coup de coeur

Terrain - Tourrettes-Sur-Loup (06140) - 1200 m² - Ref : 1343

295 000
gallery loader

Description de l'offre

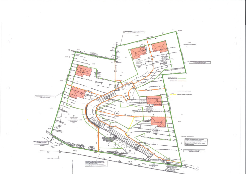
Au sein d'un quartier résidentiel situé sur le haut du quartier des valettes, lotissement comprenant 6 lots entièrement viabilisés. Superficie des lots comprise entre 1065 m² et 1650 m² Terrains en restanques. Position dominante avec vue trés dégagée. A Partir de 295.000 euros

Descriptif du bien

Prix du bien 295 000 €


Ville TOURRETTES-SUR-LOUP


Type de biens Terrain


Code postal 06140


surface terrain 1 200 m²


Terrain constructible OUI


Quartier TOURRETTES OUEST


Terrain Viabilisé OUI


Copropriété OUI


nombre de lots 6


plan de sauvegarde NON


Prix de vente honoraires TTC inclus 295 000 €


Cette annonce vous intéresse ?

* Champs obligatoires

* : Les informations recueillies sur ce formulaire sont enregistrées dans un fichier informatisé par La Boite Immo agissant comme Sous-traitant du traitement pour la gestion de la clientèle/prospects de l'Agence / du Réseau qui reste Responsable du Traitement de vos Données personnelles.
La base légale du traitement repose sur l’intérêt légitime de l'Agence / du Réseau.
Elles sont conservées jusqu'à demande de suppression et sont destinées à l'Agence / au Réseau.
Conformément à la loi « informatique et libertés », vous pouvez exercer votre droit d'accès aux données vous concernant et les faire rectifier en contactant l'Agence / le Réseau.
Si vous estimez, après avoir contacté l'Agence / le Réseau, que vos droits « Informatique et Libertés » ne sont pas respectés, vous pouvez adresser une réclamation à la CNIL.
Nous vous informons de l’existence de la liste d'opposition au démarchage téléphonique « Bloctel », sur laquelle vous pouvez vous inscrire ici : https://www.bloctel.gouv.fr 
Dans le cadre de la protection des Données personnelles, nous vous invitons à ne pas inscrire de Données sensibles dans le champ de saisie libre
Ce site est protégé par reCAPTCHA, les Politiques de Confidentialité et les Conditions d'Utilisation de Google s'appliquent.

La ville de Tourrettes-sur-Loup (06140)

autres annonces immobilières correspondant à votre recherche

Les biens similaires pour : Vente Terrain Tourrettes-sur-Loup (06140)